
ワンルームマンションをヘアサロンのコンバージョン
割と自由度の効く都心のワンルームマンションをヘアサロンにコンバージョンいたしました。
コンクリート直床工方であったため、洗髪台は床上げをし、配管スペースを作りました。
将来増設のため、配管はもう一台分してあります。
限られたスペースでのお客様の視線を考慮しカーテンを簡易間仕切り的に使用。
梁をかわすため、カーテンレールを吊り閉塞感も回避いたしました。
3点ユニットだったユニットバスを解体し、ゆったりしたパウダールームにいたしました。
竣工日 |
1981年9月 |
|---|
築年数 |
築40年 |
|---|
面積 |
|---|
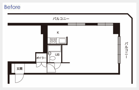
間取り |
1DK |
|---|
家族構成 |
店舗 |
|---|